全球通检测
一站式服务,全球化认证
NEWS
资讯
当前位置: 首页 » 资讯 » 行业资讯

欧盟电子产品EN IEC 62680-1-3:2021 标准更新

2023-12-04 15:54:56 点击次数:

指令发布:

2022年12月7日,欧盟官方正式发布关于通用充电器的修订指令Directive (EU) 2022/2380,以补充RED命令Directive 2014/53/EU中3.3(a)对通用性充电插口的落实措施规定。


实施日期:

新指令将于2024年12月28日起,在所有欧盟成员国强制实施。

其中,对笔记本电脑设备的要求将于2026年12月28日强制实施,在强制日期之后进入欧盟市场的新设备都应满足该指令要求。


涵盖设备范围

该修订指令涵盖以下13类无线设备:

1、手机 Handheld mobile phones; 

2、平板电脑 Tablets; 

3、数码相机 Digital cameras; 

4、头戴式耳机 Headphones;

5、带麦克风的头戴式耳机 Headsets; 

6、手持游戏机 Handheld videogame consoles;

7、便携式音箱 Portable speakers; 

8、电子阅读器 E-readers; 

9、键盘 Keyboards; 

10、鼠标 Mice; 

11、便携导航 Portable navigation systems;

12、入耳式耳机 Earbuds; 

13、笔记本电脑 Laptops.


适用对象要求备注
上述13类无线电设备的充电接口和充电线使用USB Type-C插座,且符合EN IEC 62680-1-3:2021;充电线符合ENIEC 62680-1-3:2021。充电接口和线符合标准要求
无线电设备(能够以高于5伏电压或高于3安培电流或高于15瓦功率的有线充电方式进行充电)充电协议符合ENIEC62680-1-2:2021
说明书增加“USB PDfastcharging对单独销售的充电器无影响


根据新指令要求,上述13类设备都必须配备符合EN IEC 62680-1-3:2021标准的USB Type-C充电接口,并可以使用符合相同标准的充电线缆进行充电,其中支持快充的设备应支持符合EN IEC 62680-1-2:2021的USB PD协议。


此外消费者和用户可选择购买无捆绑充电器的设备,制造商或销售商应在包装上通过特定标志标明产品是否配备充电器,并说明充电器功率范围要求以及所支持快充协议。



新指令要点解析


1、调整了原命令Article 3.3 (a)条文,并添加Article 3.4条款,补充了对于通用充电接口的具体实施要求。


2、更新了生产商、进口商、分销商等的责任和义务。


3、上述13类产品只要能够通过线缆进行充电的,都被要求强制配备符合EN IEC 62680-1-3:2021标准的USB Type-C 充电接口,并能够使用符合相同标准的充电线缆进行充电,其中支持快充的设备应符合EN IEC 62680-1-2:2021标准化的USB PD(Power Delivery)协议。


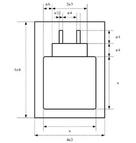
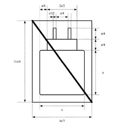
4、无线通讯设备在欧盟市场销售流通时,可选择是否配备充电器,并进一步明确使用说明,外包装或标牌中需要体现充电器的类型和配置情况,信息要以可读可见的方式显示,下图为标签示意图(需等比例缩放),其中a应该不小于7mm。


商品配置充电头:


图片


商品不配置充电头:

图片



5、标识牌中应反映电池充电规格型号,以下为标识平面图(需等比例缩放),其中a应当不低于7mm。





1、其中,XX为无线网络设备电池充电所需要的最小功率对应的数,该数字确定了充电器为无线设备充电所需的最小功率。


2、YY为无线网络设备完成大充电效率所需要的功率大数,该数据确认了充电器至少需要提供的输出功率以实现最大充电速度。


3、当充电器适用USB PD时(充电功率超过5V,电流量超过3A或输出功率超过15W),则须表明简称“USB PD”。



对DNS产品的影响


1、对于单独销售的charger,cable,暂时没有影响;


2、对于套装出货的,如果套装终端设备在Directive(EU)2022/2308指令管控的13类产品内,终端设备+cable+charger都要满足该指令要求。


3、特别提醒:TWS耳机+USB Cable,TWS耳机是在这个Directive(EU)2022/2380指令管控范围内的产品:

a.充电盒C口需要满足IEC 62680-1-3,对耳塞充电口不作要求;


b.充电盒USB C母座只接受16pin或24pin,USB cable USB C公头可以接受9,12,14,16,22或24pin,且需要满足62680要求;


c.随附整机的USB Cable,不要求必须是USB C-USB C Cable,可以是USB-C to USB A Cable;


4、无线便携式扬声器(如便携式蓝牙音箱),无线鼠标,无线键盘也在Directive(EU)2022/2308指令管控的范围内。



  • 上一篇: 芯片是否需要3C认证?
  • 下一篇: 蓝牙BQB认证即将涨价15%
  •